Торгово-інформаційний портал
професійне пральне обладнання
0800-215-019
0800-215-019

Обладнання пральні для фармацевтичного заводу

Пральне обладнання ЛОНДРІ ТРЕЙД суворо відповідає необхідним санітарним нормам

Обладнання пральні фармзаводуФармацевтична індустрія має підвищені вимоги до чистоти повітря на виробництві. Тільки «чисті кімнати» можуть забезпечити стерильність продукції, знизивши до мінімуму можливість контамінації мікроорганізмами та сторонніми частинками стерильних лікарських засобів.

Спецодяг персоналу підприємства повинен відповідати найвищим вимогам чистоти та гігієни. Прання спецодягу у пральні повинно проводитися бар’єрними пральними машинами, а приміщення пральні має бути сплановане відповідним чином.

Пральня повинна мати “брудну” зону, де відбувається збирання та зберігання брудного одягу, сортування та завантаження уніформи в пральну машину. У сусідньому приміщенні має бути “чиста” зона, де відбувається вивантаження з пральної машини, сушіння та прасування. Подальше зберігання чистої уніформи також знаходиться у “чистій” зоні, таким чином потоки брудного та чистого одягу не перетинаються.

Залежно від типу продукції, що виробляється на підприємстві, підбирають пральне обладнання необхідної класифікації:

  • На підприємстві, де виробляють звичайні, нестерильні препарати (непеніцилінові, нецитотоксичні, негормональні засоби). Тут вимоги не такі суворі. Достатньо, щоб приміщення пральні добре провітрювалося подачею 100% свіжого повітря зі ступенем фільтрації 10-15 мікрон.
  • Для спеціалізованих препаратів (пеніцилінові, цитотоксичні, гормональні засоби) приміщення пральні повинне відповідати класу D (клас 8 ISO). Рекомендується, щоб запобігти перехресному забрудненню, використовувати окрему вентиляційну систему. Пральня повинна мати окремий вхід та окремий вихід.

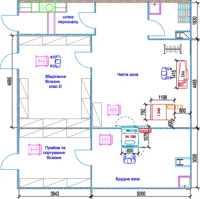
Пральня продуктивністю до 150 кг за зміну

Мінімальна комплектація із бар’єрною пральною машиною IPSO IH180 завантаженням 18 кг. Як альтернативу, можна використовувати модель DANUBE MED-16 завантаженням 16 кг.

Така комплектація підійде для невеликого підприємства. При певних вимогах до рівня чистоти, сушильна машина може бути обладнана фільтром HEPA.

Промисловий прасувальний стіл забезпечить відмінну якість прасування спецодягу. Стіл укомплектований вбудованим парогенератором та професійною електропаровою праскою.

Для такої пральні потрібна площа до 80 м². З персоналу потрібно 2-3 працівники.

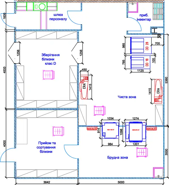
Пральня продуктивністю до 250 кг за зміну

Для оптимізації потоків брудного спецодягу у цій комплектації передбачені дві бар’єрні пральні машини різного завантаження. Персонал сортує білизну за типом та ступенем забруднення, потім завантажує в машину, завантаження якої відповідає вазі відсортованої партії.

Сушильна машина може бути обладнана фільтром HEPA при додаткових вимогах до рівня чистоти. Аналогічно, пральні машини можуть бути обладнані додатковими опціями для «чистих кімнат».

Спецодяг персоналу прасують на двох професійних столах. У комплектацію столів входять парогенератори та електропарові праски.

Повністю програмоване керування пральних машин дозволяє створювати спеціалізовані програми прання та підключити систему автоматичного дозування хімії.

Максимально автоматизувавши пральню, можна скоротити кількість персоналу до 3-4 осіб. Слід врахувати фактор втоми протягом робочого дня у двох прасувальниць, що може позначитися на продуктивності.

Пральня продуктивністю до 500 кг за зміну

Для оптимізації потоків брудного спецодягу у цій комплектації передбачені дві бар’єрні пральні машини різного завантаження. Персонал сортує білизну за типом та ступенем забруднення, потім завантажує в машину, завантаження якої відповідає вазі відсортованої партії.

Сушильна машина може бути обладнана HEPA фільтром при додаткових вимогах до рівня чистоти. Аналогічно, пральні машини можуть бути обладнані додатковими опціями для «чистих кімнат».

Спецодяг персоналу швидко та ефективно можна попрасувати за допомогою пневматичного пресу. Промисловий прасувальний прес має прямокутну форму плити для прасування. У комплектацію входить парогенератор. За бажання можна замовити електропарову праску.

Повністю програмоване керування пральних машин дозволяє створювати спеціалізовані програми прання та підключити систему автоматичного дозування хімії.

Максимально автоматизувавши пральню, можна скоротити кількість персоналу до 4-5 осіб.

Співпраця з ЛОНДРІ ТРЕЙД

За 20 років роботи компанія обладнала спеціалізовані пральні на половині фармацевтичних підприємств України. У ЛОНДРІ ТРЕЙД накопичився безцінний досвід роботи у цій сфері та безліч вдячних клієнтів.

Послуга “під ключ” включає повний комплекс підтримки, починаючи з передпроектних робіт. На фінальному етапі, після монтажу обладнання, ми організуємо постачання рідких миючих засобів. Хіміки-технологи компанії запрограмують спеціалізовані програми прання, які відповідатимуть необхідним стандартам гігієни та чистоти.

Інженери-механіки підключать системи автоматичного дозування миючих засобів. Автоматичні дозатори оптимізують технологічні процеси та витрати миючих засобів, виключать “людський фактор”.

Телефонуйте! Ми допоможемо організувати пральню, яка оптимально вирішить завдання чистоти та гігієни будь-якої складності.