Торгово-информационный портал
профессиональное прачечное оборудование
0800-215-019
0800-215-019

Оборудование прачечной для фармацевтического завода

Прачечное оборудование ЛОНДРИ ТРЕЙД строго соответствует необходимым санитарным нормам

Оборудование прачечной фармзаводаФармацевтическая индустрия имеет повышенные требования к чистоте воздуха на производстве. Только «Чистые комнаты» могут обеспечить стерильность продукции, снизив до минимума возможность контаминации микроорганизмами и посторонними частицами стерильных лекарственных препаратов.

Спецодежда персонала предприятия должна соответствовать самым высоким требованиям чистоты и гигиены. Стирка спецодежды в прачечной должна производиться барьерными стиральными машинами, а помещение прачечной должно быть спланировано соответствующим образом.

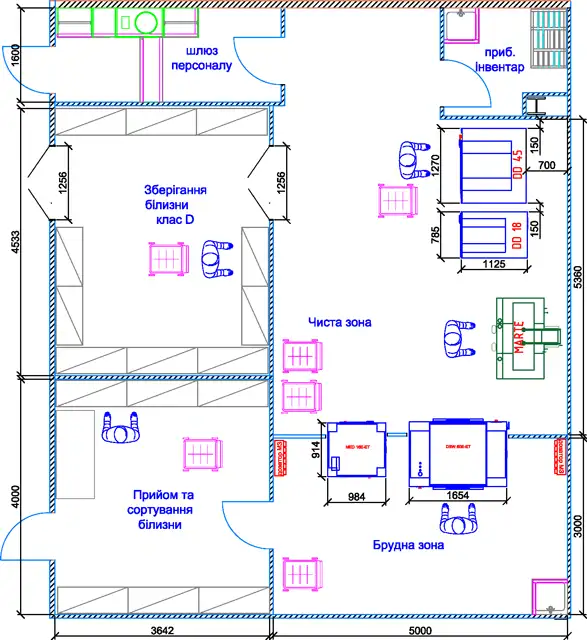
Прачечная должна иметь «грязную» зону, где происходит сбор и хранение грязной одежды, сортировка и загрузка униформы в стиральную машину. В соседнем помещении должна находиться «чистая» зона, где происходит выгрузка из стиральной машины, сушка и глажка. Дальнейшее хранение чистой униформы также находится в «чистой» зоне, таким образом потоки грязной и чистой одежды не пересекаются.

В зависимости от типа продукции, которая производится на предприятии, подбирают прачечное оборудование необходимой классификации:

  • На предприятии, где производят обычные, нестерильные препараты (непенициллиновые, нецитотоксические, негормональные средства). Здесь требования не такие суровые. Достаточно, чтобы помещение прачечной хорошо проветривалось подачей 100% свежего воздуха со степенью фильтрации 10-15 микрон.
  • Для специализированных препаратов (пенициллиновые, цитотоксические, гормональные средства) помещение прачечной должно соответствовать классу D (класс 8 ISO). Рекомендуется, для предотвращения перекрестного загрязнения, использовать отдельную вентиляционную систему. Прачечная должна иметь отдельный вход и отдельный выход.

Прачечная производительностью до 150 кг в смену

Минимальная комплектация с барьерной стиральной машиной IPSO IH180 загрузкой 18 кг. Как альтернативу можно использовать модель DANUBE MED-16 загрузкой 16 кг.

Такая комплектация хорошо подойдёт для небольшого предприятия. При определённых требованиях к уровню чистоты, сушильная машина может быть оборудована HEPA фильтром.

Промышленный гладильный стол обеспечит отличное качество глажки спецодежды. Стол укомплектован встроенным парогенератором и профессиональным электропаровым утюгом.

Для такой прачечной необходима площадь до 80 м². Из персонала потребуется 2-3 работника.

Прачечная производительностью до 250 кг в смену

Для оптимизации потоков грязной спецодежды в этой комплектации предусмотрены две барьерные стиральные машины разной загрузки. Персонал сортирует бельё по типу и степени загрязнения, затем загружает в машину, загрузка которой соответствует весу отсортированной партии.

Сушильная машина может быть оборудована HEPA фильтром при дополнительных требованиях к уровню чистоты. Аналогично стиральные машины могут быть оборудованы дополнительными опциями для «чистых комнат».

Спецодежду персонала гладят на двух профессиональных столах. В комплектацию столов входят парогенераторы и электропаровые утюги.

Полностью программируемое управление стиральных машин позволяет создавать специализированные программы стирки и подключить систему автоматического дозирования химии.

Максимально автоматизировав работу прачечной, можно сократить число персонала до 3-4 человек. Следует учесть фактор усталости на протяжении рабочего дня у двух гладильщиц, что может отразиться на производительности.

Прачечная производительностью до 500 кг в смену

Для оптимизации потоков грязной спецодежды в этой комплектации предусмотрены две барьерные стиральные машины разной загрузки. Персонал сортирует бельё по типу и степени загрязнения, затем загружает в машину, загрузка которой соответствует весу отсортированной партии.

Сушильная машина может быть оборудована HEPA фильтром при дополнительных требованиях к уровню чистоты. Аналогично стиральные машины могут быть оборудованы дополнительными опциями для «чистых комнат».

Спецодежду персонала быстро и эффективно можно погладить при помощи пневматического пресса. Промышленный гладильный пресс имеет прямоугольную форму гладильной плиты. В комплектацию входит парогенератор. При желании можно заказать электропаровой утюг.

Полностью программируемое управление стиральных машин позволяет создавать специализированные программы стирки и подключить систему автоматического дозирования химии.

Максимально автоматизировав работу прачечной, можно сократить число персонала до 4-5 человек.

Сотрудничество с ЛОНДРИ ТРЕЙД

За 20 лет работы компания оборудовала специализированные прачечные на половине фармацевтических предприятий Украины. У ЛОНДРИ ТРЕЙД накопился бесценный опыт работы в этой сфере и множество благодарных клиентов.

Услуга «под ключ» включает полный комплекс поддержки начиная с предпроектных работ. На финальном этапе, после монтажа оборудования, мы организуем поставку жидких моющих средств. Химики-технологи компании запрограммируют специализированные программы стирки, которые будут соответствовать необходимым стандартам гигиены и чистоты.

Инженеры-механики подключат системы автоматического дозирования моющих средств. Автоматические дозаторы оптимизируют технологические процессы и расход моющих средств, исключат «человеческий фактор».

Звоните! Мы поможем организовать прачечную, которая оптимально решит задачи чистоты и гигиены любой сложности.